Detailed Search
You are reviewing the product - Belle River 3
Belle River 3
Our Belle River 3 offers an open and inviting layout designed for everyday living and entertaining. The kitchen connects seamlessly to the living and dining areas, creating a central gathering space with easy access to the rear porch for indoor–outdoor flow. A private owner’s suite is thoughtfully separated from the main living areas, while a secondary bedroom, office, laundry room, and ample storage add flexibility and function. The foyer provides a welcoming entry from the front porch, and the attached garage offers convenient access into the home.
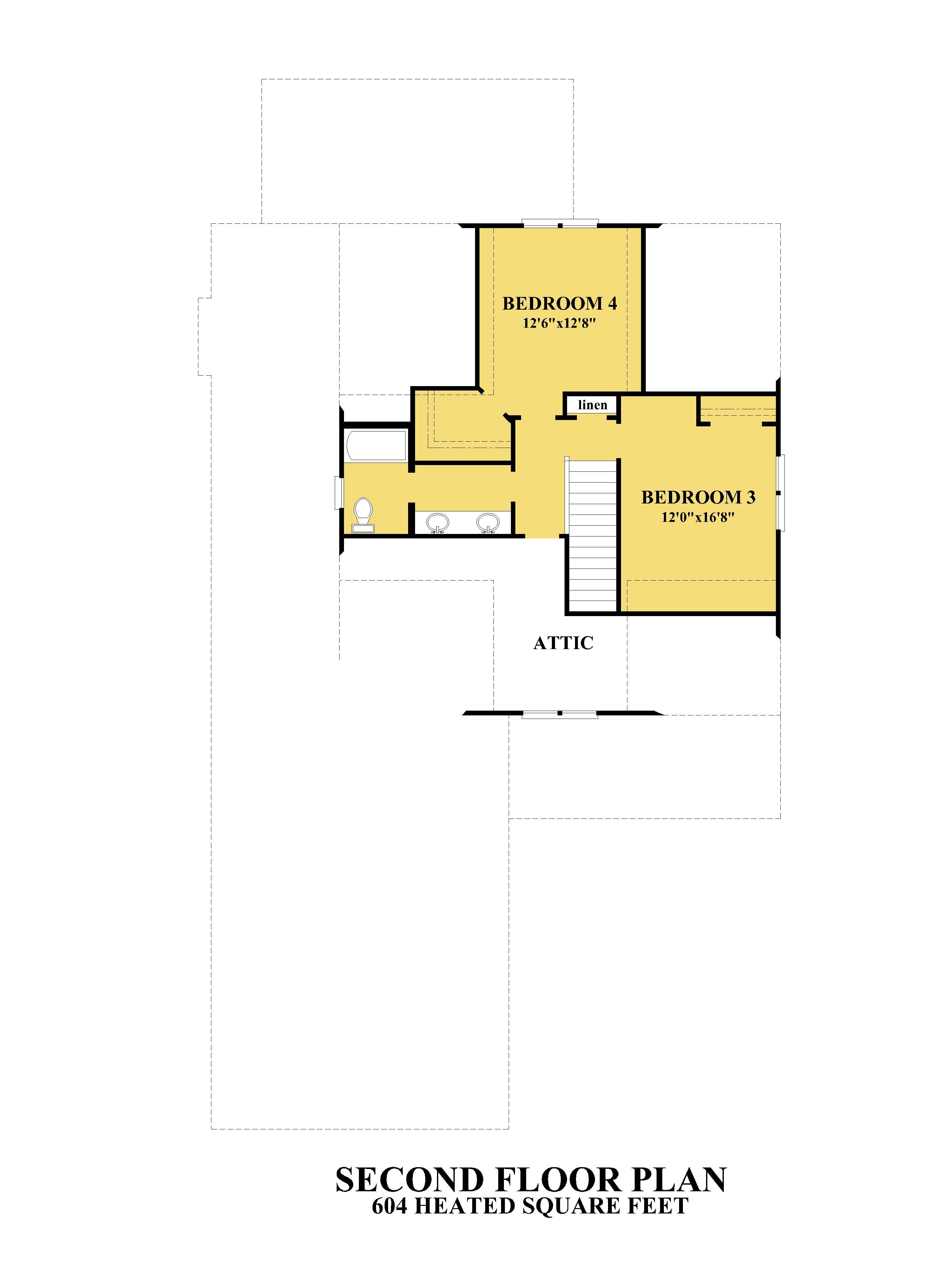
The second floor is arranged to provide comfortable private living spaces, featuring two additional bedrooms connected by a shared bathroom and hallway with linen storage. This level offers a quiet retreat from the main living areas below, making it ideal for family members or guests. The layout balances privacy with accessibility to the stairway, creating a practical and efficient upper-level living space.
Help me select the proper format click here.
I would like to customize this house plan click here.
House Plan Specifications
| SQ FT | 2406 |
|---|---|
| Foot Print | 44’0” x 81’2” |
| Stories | 2 |
| Bedrooms | 4 |
| Bathrooms | 3 |
| First Floor Ceiling Height | 10' |
| Second Floor Ceiling Height | 9' |
| House Width | 44' 0" |
| House Depth | 81'2" |
| Height | N/A |
| Foundation | Crawl Space |
| Garage | Coutyard Load |
| Exterior Wall Thickness | 2×4 |
|---|---|
| Master Suite on main floor | YES |
| His & Hers Closets | NO |
| Walk In Pantry | YES |
| Office/Study | YES |
| Elevator | NO |
| FROG/Bonus Room | NO |
| Reverse Floor Plan | NO |
| Butler's Pantry | NO |
| Media Rooms | NO |
| Exercise Room | NO |
| Wet Bar | NO |
Similar House Plans
-
1805 sqft
3 bedrooms | 2 bathrooms
From $1.920.00
-
1590 sqft
3 bedrooms | 2 bathrooms
From $1.920.00
-
1501 sqft
3 bedrooms | 2 bathrooms
From $1.920.00
-
1914 sqft
3 bedrooms | 2.5 bathrooms
From $1.920.00
-
2243 sqft
4 bedrooms | 3 bathrooms
From $2.100.00




Reviews for the product - Belle River 3(Back to product)